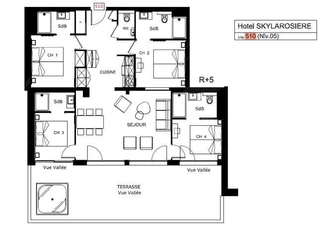
Appartement 510, standing 8 personnes, 95m², vue exceptionnelle sur la vallée
Appartement 510, standing 8 personnes, 95m², vue exceptionnelle sur la vallée (AVP023)
Informations
- Type de location :
- Appartement dans Résidence
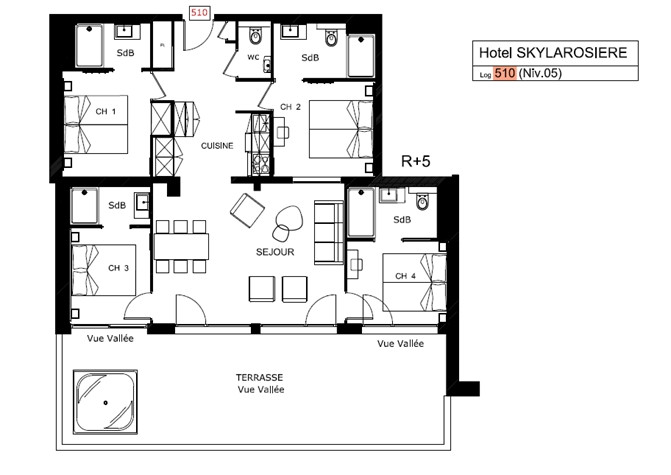
- Appartement :
- N° 510
- Type d'appartement :
- 5 pièces
- Capacité maximum :
- 8 personnes
- Etage par rapport au sol :
- 5ème étage
- Niveau dans la résidence :
- Résidence avec ascenseur
- Exposition :
- Exposition Sud
- Vue :
- Sur la vallée
- Superficie totale :
- 95 m²
Equipements, Services
- Equipement de la cuisine :
- Plaques à induction
- Four multifonctions
- Micro-ondes
- Lave-vaisselle
- Réfrigérateur
- Cafetière filtre
- Cafetière NESPRESSO
- Bouilloire
- Grille-pain
- Appareil à raclette en prêt
- Cave à vin
- Ustensiles de ménage
- Equipement sanitaire :
- Lave-linge collectif payant
- Sèche-linge collectif
- Fer à repasser collectif
- Table à repasser collective
- Aspirateur
- Equipement multimédia :
- Wifi Gratuit
- Télévision
- Equipements / Loisirs :
- Casier ou Local à ski
- Sèche chaussures
- Bagagerie
- Salle de fitness
- Extérieur :
- 1 Terrasse(s)
- Stationnement :
- 1 place de parking couvert incluse par appartement
- Prise électrique ou borne de recharge pour voiture électrique payant
- Bien-être :
- Hammam
- Sauna
- Jacuzzi
- Massages et soins visage (en supplément)
- Bébé / Enfant :
- Kit bébé sur réservation
- Animaux :
- 1 seul animal admis avec supplément sous réserve qu'il ne reste jamais seul dans l'appartement 100 €
- Blanchisserie :
- Linge de lit et de toilette fournis
- Lits faits à l'arrivée
- Ménage de fin de séjour :
- Inclus hors cuisine / vaisselle, balcon et poubelle
- Inconvénients du voisinage :
- Bar de nuit à proximité
En savoir plus
- Cuisine :
- Cuisine ouverte
- Salon :
- canapé(s) non convertible(s)
- Chambre 1 :
- chambre sans fenêtre vers l'extérieur
- 2 lit(s) 1 personne (90x200)
- salle de douche dans la chambre
- Chambre 2 :
- chambre sans fenêtre vers l'extérieur
- fenêtre sur salon
- 2 lit(s) 1 personnes (90x200)
- salle de douche avec WC dans la chambre
- Chambre 3 :
- 1 lit(s) 2 personnes (160x200)
- salle de douche dans la chambre
- Chambre 4 :
- 2 lit(s) 1 personne (90x200)
- salle de bain avec WC dans la chambre
- Salle de bain 1 :
- dans la chambre 1
- douche
- sèche-cheveux
- Salle de bain 2 :
- dans la chambre 2
- douche
- WC
- sèche-cheveux
- Salle de bain 3 :
- dans la chambre 3
- douche
- sèche-cheveux
- Salle de bain 4 :
- dans la chambre 4
- baignoire
- WC
- sèche-cheveux
- WC :
- 1 WC indépendant(s)
- A savoir :
- type CONFORT : exposition sud ou appartement en étage
- 1 chambre(s) sans fenêtre
- 1 chambre avec fenêtre sur salon
- Charges :
- comprises
- taxe de séjour en sus
- Caution :
- 500 € de caution demandée
Situation sur le Plan
Destination
Coordonnées GPS
Latitude : 45.62765
Longitude : 6.84940
- Résidence :
- Sky La Rosière
- Zone géographique :
- La Rosière - Centre
- Quartier :
- Front de Neige
- Le Centre
- Appartement :
- N° 510
- Distances :
- Au pied des pistes
- Retour skis aux pieds
- Au coeur des commerces
Disponibilités
Avis
Note :
(1 avis)
4
/ 5
Juillet 2024
Lidvine
Note :
4
/ 5
La conformité du descriptif par rapport à la prestation
La propreté générale
Le confort de la literie
L’aménagement intérieur (décoration, mobilier…)
Les équipements
La situation géographique
Le rapport qualité/prix
Avis écrit le 07/08/2024
Avis par type de profil


















